Вентиляция и отопление дома из СИП-панелей
Структурно-изолированные панели (СИП- Structural insulated panel) — вид сэндвич-панелей с высокими термоизоляционными свойствами, используемых как несущие элементы конструкции.
При строительстве дома из СИП - панелей особенно важно грамотно организовать систему вентиляции и отопления. У такого дома превосходные термоизоляционные характеристики. Потому требуется квалифицированный расчет и комплексный подход к организации энергоэффективной вентиляции, отопления и кондиционирования дома.
В таком доме наиболее экономически оправданным будет использование теплового насоса «воздух-вода» для отопления и охлаждения комнат, а также для подготовки горячей воды. Для такого оборудования не потребуется подвода газа или мощной энергосети.
В нескольких комнатах в дополнение к тепловому насосу достаточно установить фанкойлы, которые быстро охладят воздух в летнюю жару, а зимой будут работать на отопление.
Для таких домов с повышенной герметичностью конструкций еще на этапе проектирования для полного контроля микроклимата предусматривается приточно-вытяжная вентиляция.
Эффективность рекуперации тепла у качественной приточно-вытяжной установки - до 75 -80%! Это означает, что почти полностью тепло удаляемого вентиляционного воздуха передается чистому приточному воздуху. Благодаря этому существенно экономятся средства на отопление.
Остановимся на реальном примере проекта с тепловым насосом и принудительной вентиляцией в двухэтажном коттедже из СИП-панелей площадью 180 м кв. Высота этажей стандартная для сохранения тепла, потому возможность установки подвесных систем вентиляции ограничена.
Вид изнутри, комната 1 этажа, лестница и мансарда


В доме смонтирован тепловой насос "воздух-вода" Mycond Arctic Home Smart и в качестве доводчиков - несколько канальных фанкойлов Mycond SEC. Малогабаритные фанкойлы и разводка воздуховодов от приточно-вытяжных установок (ПВУ) Mycond MV компактно скрыты в запотолочном пространстве.
Осуществляется полный контроль микроклимата по воздухообмену, нагреву и охлаждению воздуха в комнатах дома.
Цифровые термостаты позволяют дистанционно контролировать параметры температуры воздуха, настраивать и программировать режимы работы фанкойлов.

Установленное оборудование и аксессуары для системы вентиляции
В систему вентиляции, кроме двух ПВУ, дополнительно входят: система воздуховодов и различных заборных и распределительных решеток, а также калорифер, шумоглушитель и канальный увлажнитель Mycond серии MHDM.
Преимущества приточно-вытяжных установок MYCOND СЕРИИ MV

- Компактные размеры, монтажная высота - 270 см.
- Рекуперация тепла и влаги, фильтрация воздуха.
- Высокий коэффициент рекуперации благодаря пластинчатому рекуператору - до 75%.
- Регулирование скорости вентиляторов.
- Отличная шумо- и теплоизоляция корпуса установки.
- Контроль температуры воздуха встроенными датчиками NTC.
- Тихая работа.
- Современная система управления, защита рекуператоров от обмерзания.
Особенности канального увлажнителя Mycond серии MHDM-D
Электродный увлажнитель канальной установки Mycond серии MHDM-D необходим для контроля и регулирования уровня влажности в помещениях дома до комфортного диапазона в 40 — 60 %. В зимние месяцы наружный воздух догревается электронагревателем до нужной температуры, но его влажность недостаточная, потому увлажнение воздуха до нормы будет полезным.
Преимущества увлажнителя MHDM-D
- Малая монтажная высота - 260 мм удобна для подвесного монтажа в ограниченном пространстве.
- Защищенный от коррозии корпус из алюминиевого сплава.
- Легкая замена цилиндра, увлажнитель не демонтируется.
- Работа в автоматическом режиме.
- Подсоединяется к воздуховодам, подаче воды и к системе дренажа.
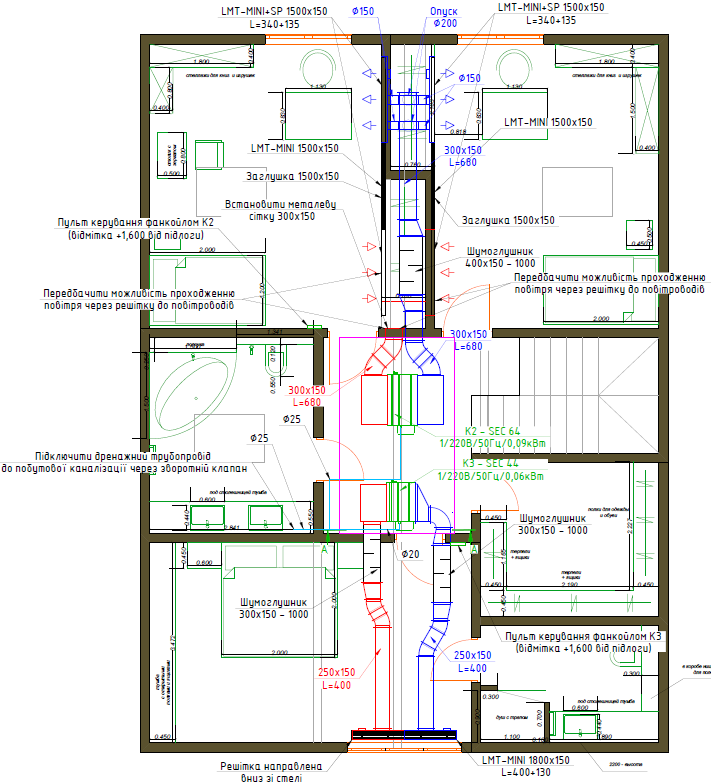
Схема системы приточно-вытяжной вентиляции и фанкойлов 1 этажа

Схема системы фанкойлов 2-го этажа

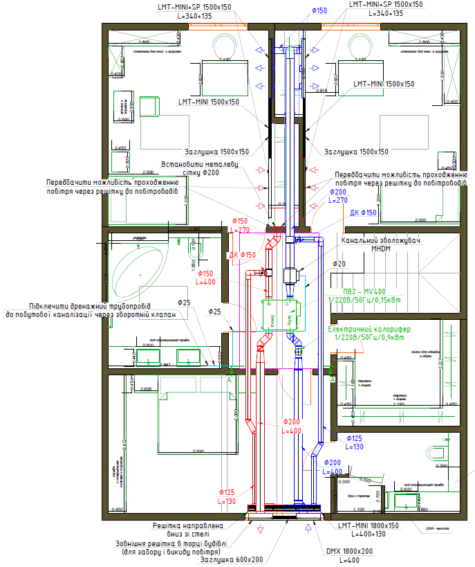
Схема системы приточно-вытяжной вентиляции 2-го этажа, увлажнитель и калорифер

Выводы
В доме из СИП-панелей с высокими требованиями к энергоэффективности выгодно установить современное вентиляционное и тепловое оборудование.
Теплонасосное оборудование в комплекте с фанкойлами надежно и долговечно, оно выгодно для экономного отопления и кондиционирования дома.
Вентиляционные установки на двух этажах автономно обеспечивают качественный воздухообмен и не занимают жилую площадь в доме. Высокий коэффициент рекуперации энергоэффективных установок Mycond MV сокращает энергозатраты на обогрев дома.
Дополнительный контроль уровня влажности и увлажнение воздуха гарантируют наиболее здоровые для людей условия, безопасную среду для обстановки и техники, а также сохранность самой конструкции дома.